Besiktigad
Säljarförsäkrad
Visning
Västerbovägen 10
Pris: 4 750 000 kr/bud
Bostadstyp: Friliggande villa
Upplåtelseform: Friköpt
Antal rum: 5 (varav 4 sovrum)
Boarea: 135 kvm
Biarea: 153 kvm
Tomt: 1 186 kvm
Byggnadsår: 1955
Driftkostnad: 46 002 kr/år
Fastighetsbeteckning: Ekeby 3:120
Objektbeskrivning
Utemiljö
Fastigheten bjuder på en exklusiv trädgårdsmiljö med uppvärmd pool, stensatta ytor och flera härliga uteplatser. Det snygga insynsskyddade planket ger en privat och ombonad känsla. Här finns även en rymlig asfalterad uppfart, dubbel carport, laddbox för elbil och ett isolerat och uppvärmt förråd.
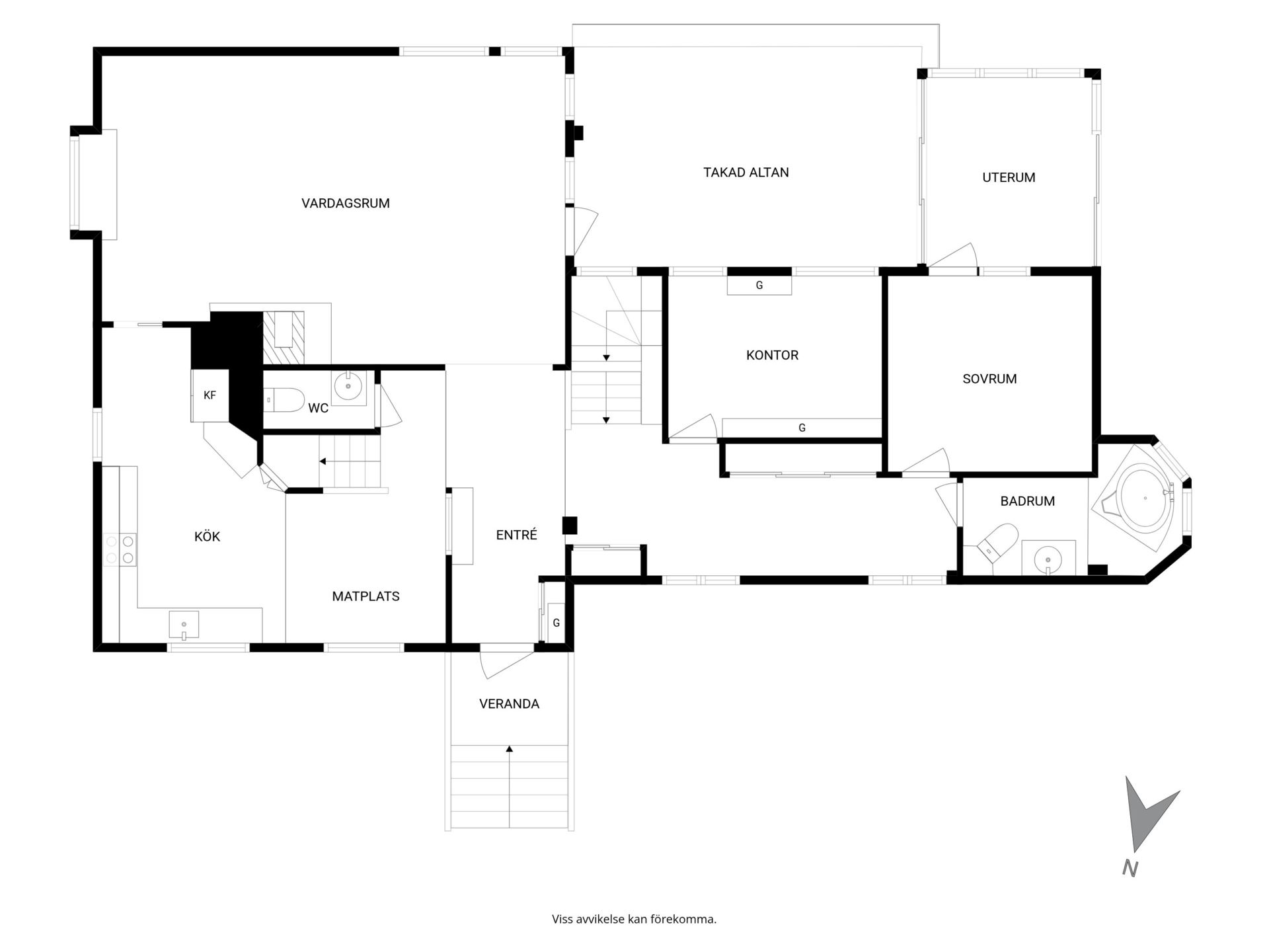
Entréplan
Ljust och rymligt vardagsrum med originalparkett i vacker stavläggning, rikligt ljusinsläpp och en stämningsfull braskamin. Härifrån nås både altan under tak, uterum och vidare ut till trädgården. Intill ligger det renoverade köket med moderna materialval, ett helkaklat badrum med nedsänkt badkar, ett kontor/sovrum samt ett master bedroom. I anslutning till hallen finns även en gästtoalett.
Övre plan
Två rymliga sovrum placerade i varsin gavel samt praktisk kattvind med bra förvaring.
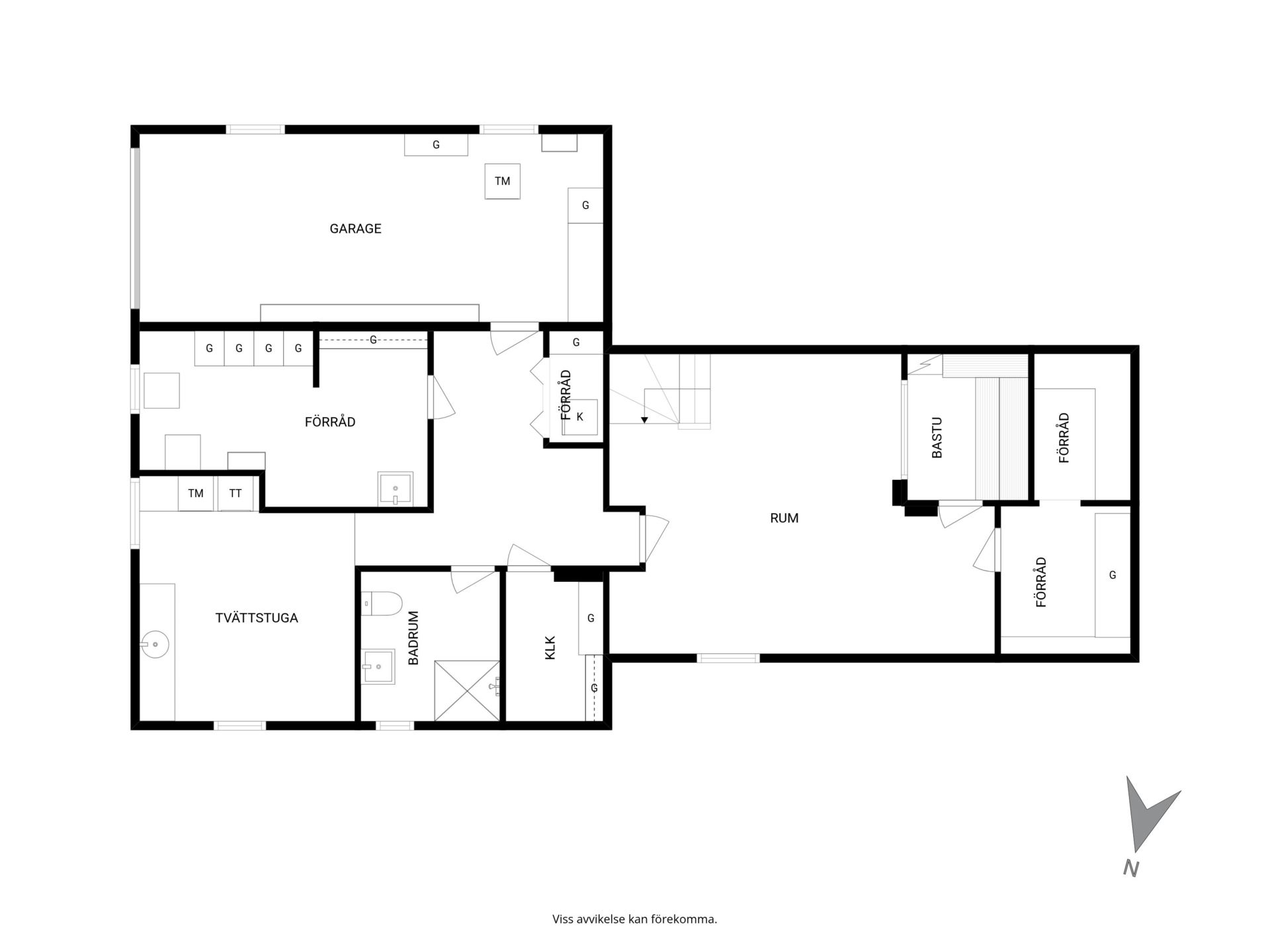
Källarplan
En komplett relaxavdelning med bastu, dusch och stort badrum. Dessutom finns en stor tvättstuga, flera förrådsutrymmen och utgång till garaget.
Tekniska förbättringar
Huset är mycket väl omhändertaget och påkostat genom åren. Här finns tilläggsisolering, bergvärme, nytt tak, 3-glasfönster, ny dränering, stambyte samt ny elinstallation med jordfelsbrytare och ny el-central.
Ekeby/Flacksta är ett omtyckt villaområde strax utanför Eskilstuna centrum. Här bor du med närhet till skolor, förskolor och bra kommunikationer samtidigt som naturen finns runt knuten. Området uppskattas för sin lugna atmosfär, grönska och korta avstånd in till stadens puls.
FILM: https://youtu.be/hseV5wWflZs
Pris: | 4 750 000 kr/bud |
Bostadstyp: | Friliggande villa |
Upplåtelseform: | Friköpt |
Gatuadress: | Västerbovägen 10 |
Antal rum: | 5 (varav 4 sovrum) |
Boarea: | 135 kvm |
Biarea: | 153 kvm |
Areakälla: | taxeringsinformation |
Tomtarea: | 1 186 kvm |
Byggnadsår: | 1955 |
Driftkostnad: | 46 002 kr/år |
Fastighetsbeteckning: | Ekeby 3:120 |
Summa taxeringsvärde: | 2 590 000 |
Typkod: | 220, Småhusenhet, bebyggd |
Taxeringsår: | 2024 |
Bredband: | Fiber |
ENTRÈPLAN
Hall
Välkomnande hall med plats för avhängning och bra förvaring. Härifrån nås både gästtoalett och bostadens sociala ytor. Längre in nås även ytterligare klädförvaring i garderober.
Vardagsrum
Stort och ljust vardagsrum med vacker originalparkett i stavläggning, stora fönsterpartier som ger rikligt ljusinsläpp samt en stämningsfull braskamin. Härifrån finns utgång till både altan under tak, uterum och vidare ut till den härliga trädgården med pool.
Kök
Smakfullt renoverat kök (-20) i stilrena materialval med gott om förvaring bakom vita släta luckor, fina arbetsytor och matplats i anslutning till fönster. Maskinerna består av moderna vitvaror som byttes ut i samband med renoveringen. Kyl och frys i fullhöjd, inbyggnads ugn och mikro, induktionshäll, köksfläkt och diskmaskin.
Badrum
Helkaklat badrum med klinkergolv och behaglig golvvärme. Handfat i kommod med överhängande spegelskåp, vägghängd toalett och nedsänkt badkar – en kombination av funktion och karaktär.
Master bedroom
Rymligt sovrum med plats för dubbelsäng och sängbord. Rikligt med ljusinsläpp och utgång via altandörr till uterummet.
Kontor/Sovrum
Flexibelt rum som idag nyttjas som kontor, men som fungerar utmärkt som gästrum eller extra sovrum.
Gästtoalett
I anslutning till hallen finns en praktisk gäst-wc med handfat, badrumsspegel och toalett. Helkaklade väggar och klinkergolv.
ÖVRE PLAN
Sovrum 2 & 3
Två rymliga sovrum placerade i varsin gavel med bra ljusinsläpp och gott om plats för förvaring. Kattvind som angränsar de båda rummen + rymlig vind ger extra förvaringsutrymmen.
KÄLLARPLAN
Relax & Bastu
Här finns en inbjudande relaxavdelning med bastu och avkopplande allrum. Klinkergolv med vattenburen golvvärme för hög komfort tillsammans med ljusa panelväggar som skapar en varm och lugn känsla. Rymlig och inbjudande bastu.
Badrum
Dusch i stort helkaklat badrum med klinkergolv och golvvärme, wc, handfat i kommod, spegelskåp och handdukstork.
Tvättstuga
Stor och välplanerad tvättstuga med generösa arbetsytor, förvaring och både tvättmaskin och torktumlare.
Förråd & Förvaring
Flera praktiska förrådsutrymmen som ger gott om förvaring.
Garage
Direktutgång från källaren till garage.
FILM: https://youtu.be/hseV5wWflZs
Tomtarea: | 1 186 kvm |
Tomttyp: | Trädgårdstomt |
Övrigt om tomt: | En fantastisk trädgård med uppvärmd pool omgiven av stenlagd terrassmiljö, flera uteplatser och snyggt insynsskyddande plank. En plats som verkligen bjuder in till socialt umgänge, avkoppling och härliga sommardagar. Vidare finns plana gräsytor för spring och lek. Poolen är rostfri med liner och integrerad trappa, 8 x 4 meter och 1,5 meter djup, värms upp med poolpump och renas med sandfilter. |
Uteplats: | Med utgång från vardagsrummet till takad uteplats med vidare access till poolområdet. Intill finns inglasat uterum som förlänger säsongen från tidig vår till sen höst. Flera trevlig uteplatser i trädgården som ger en plats i värmande sol eller svalande skugga under hela dagen beroende på individuella preferenser. |
Beskrivning bilplats: | Rymlig asfalterad uppfart med dubbel carport, laddbox för elbil och förråd. Garage finns i källaren. |
Område: | Flacksta/Ekeby |
Allmänt om området: | Populärt och omtyckt bostadsområde som präglas av främst stora och små villor. Kort avstånd till barnomsorg och cykelbana hela vägen till Eskilstuna centrum. Närhet till shoppingcenter Tuna park med affärer, restauranger, apotek, systembolag och mataffärer. Trevliga promenad- och motionsstråk i intilliggande skog med en avkopplande miljö. |
Byggnadstyp: | 1½-plansvilla med källare |
Byggnadsår: | 1955 |
Fasad: | Tegel och trä |
Fönster: | 3-glas |
Tak: | Betongpannor |
Grundmur: | Källare |
Uppvärmning: | Bergvärme |
Övrigt om byggnaden: | RENOVERINGAR 1992-2000 - Ny trappa till källaren - Bastu - Relax med vattenburen golvvärme - Nytt 3-glasfönster utanför bastu - Slutet av 90-talet dränerad grund 2000-tal - Träbeklädnad vägg med stålregel och luftspalt bakom - Nytt tak (papp/läkt/nya pannor) (2000) - Installerat mögelstopper - Satt in takfönster - Ny entré med klinkers och golvvärme, el (2001) - Ny ytterdörr - Utbyggnad av badrum med nedsänkt badkar med vattenburen värme i golv (2003) - Installation av bergvärme 175 meter med extra tank (2004) - Byte av alla fönster entré- och övre plan till 3-glas fönster (2004) - Tilläggsisolerat vind - Isolerat alla innerväggar - Ny gipsbeklädnad på innerväggar - Byte till ny elcentral - Installation av Jordfelsbrytare - Nya innertak i alla rum förutom master bedroom (2006) - Installerat insats i öppna spisen med aluminiumrör genom skorstenen - Öppna spisen beklädd med nya stenar - Ny dubbelcarport med uppvärmt förråd - Nya gavelspetsar på huset med stomme, 28 cm isolering och beklädnad 2010-tal - Nytt duschrum, helkaklat med vattenburen golvvärme (2013) - Stambyte - Ny helkaklad tvättstuga med vattenburen golvvärme - Nytt mekaniskt ventilationssystem i hela huset med värmeåtervinning, FTX (2013) - Ny altan (2013) - Ny smidestrapp till entrén (2015) - Nytt tak över nya entrén - Ny inglasad del av altanen, isolerade golv och infravärme (2016) 2020 - Helt nytt kök inklusive nya vitvaror - Belysning i kökslådor - Ny eldragning - Ny innervägg - Nytt innertak - Ny parkett, kök till badrum - Ny garageport - Laddbox till elbil i carport 2023 - Renoverat tak, målning utförd av firma |
Övriga byggnader: | Dubbel carport. Förråd. |
Ventilationstyp: | Mekanisk till- och frånluft med värmeåtervinning (FTX) |
Energideklaration utförd: | Ja |
Energideklarationsdatum: | 2025-10-01 |
Primärenergital: | 118 kWh/kvm & år |
Energiförbrukning: | 90 kWh/kvm & år |
Energiklass: | D |
Vatten & avlopp: | Kommunalt vatten året om. Kommunalt avlopp |
El: | 35 186 kr/år |
Vatten & avlopp: | 7 348 kr/år |
Sotning: | 600 kr/år |
Renhållning: | 2 388 kr/år |
Övrigt: | 480 kr/år |
Totalt: | 46 002 kr/år |
Utöver detta tillkommer kostnad för fastighetsavgift/skatt 10 074 kr | |
Pantbrev: | 1 686 000 kr |
Personer i hushållet: | 2 |
Kommentar: | Driftskostnaderna är säljarnas faktiska kostnad under de senaste 12 månaderna. Elkostnaden avser både hushållsel och uppvärmning. Övrigt avser obligatoriskt serviceavtal för stadsnätet. Individuell kostnad för hemförsäkring tillkommer. |
Fullvärde: | Ja |
Nätbolag: | Eskilstuna Energi och Miljö AB |
Elförbrukning: | 18 519 kWh/år |



Alla bilder

























































